Projets
Contact
About
Projets
Contact
About
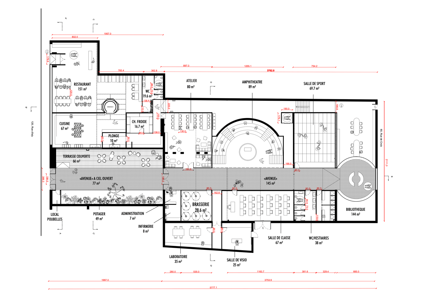
Thierry Marx College
- Projet de réhabilitation d'une ancienne usine textile en école de cuisine à Roubaix dans
les Hauts-de-France pour le célèbre chef Thierry Marx. -
Plan mis en couleur
Logiciel : Autocad + Photoshop
Plan côté
Logiciel : Autocad
Plan de sécurité
Logiciel : Autocad
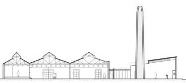
Élévation façade mise en couleur
Logiciel : Autocad + Photoshop
Coupe transversale mise en couleur
Logiciel : Autocad + Photoshop
Coupe transversale mise en couleur
Logiciel : Autocad + Photoshop